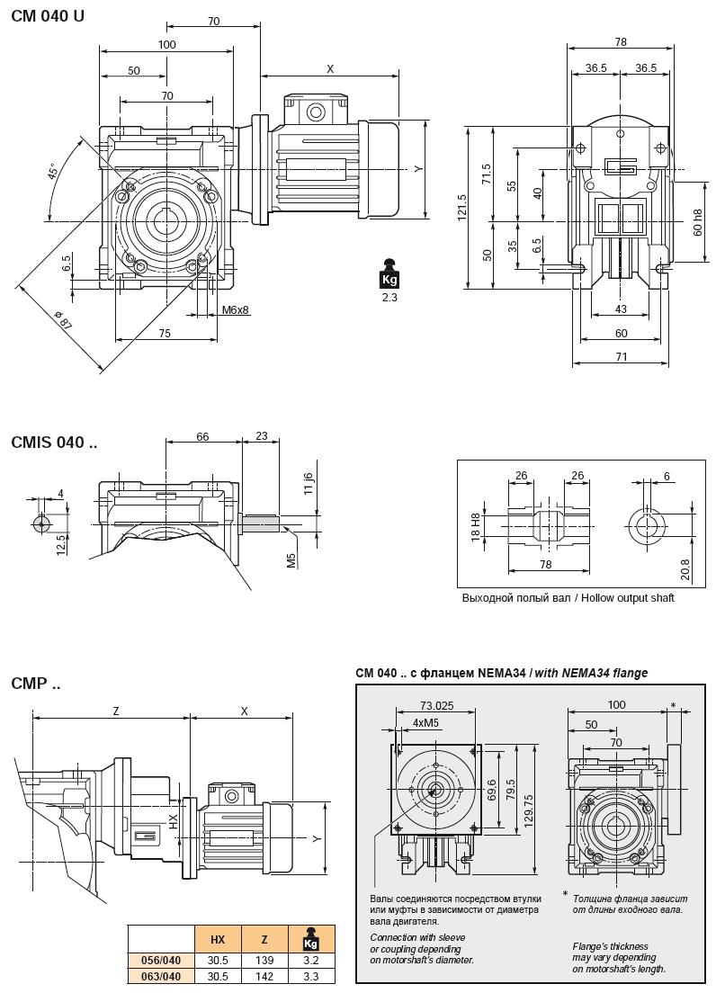
Вал редуктора CM040 полый диаметром 18 мм. В качестве опций с редуктором поставляются валы, фланцы и реактивные тяги. Окраска редуктора серая.